Simrad SH90 Hull Unit
The Simrad SH90 sonar is provided with a hull unit designed to lower the transducer into the water below the hull when the sonar is used. When the sonar is switched off, the transducer is retracted, and protected in inside the installation trunk.
The SH90 Hull Unit is designed to be lower the transducer 1.0 meters below the ship's hull. The transducer can also be lowered to any selectable middle position. The cylindrical transducer array with 480 elements allows the sonar beam to give full 360° coverage of the water volume down to -60°. The sensor for the electronic stabilization of the sonar beams is housed in the Motor Control Unit.

Main parts identification
- Hoist motor
- Motor Control Unit
- Gantry
- Flange
- Installation trunk
- Transducer
- Transducer cable to Transceiver Unit
- Transducer shaft
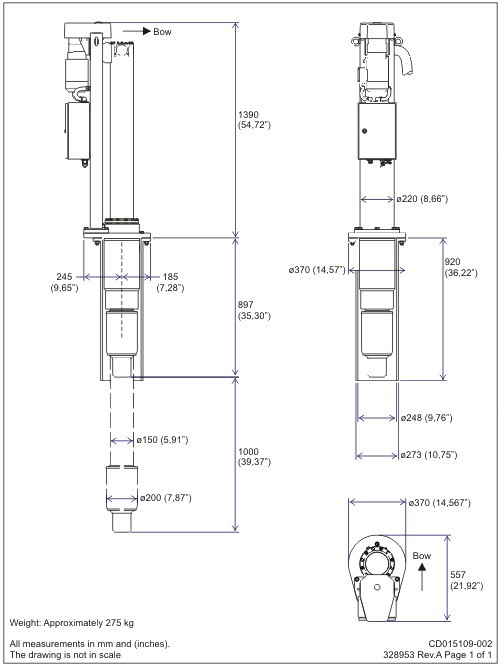
Hull Unit outline dimensions
The drawing is provided for information only. It is not in scale. All drawings can be downloaded in PDF and/or DWG format.

Installation drawings
Relevant drawings are provided for installation of the hull unit and production of the installation trunk.